Anúncios

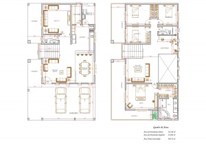
Para as pessoas que desejam comprar um terreno para construir a sua casa própria e também os que querem fazer uma reforma em sua casa, sempre recorrem aos modelos de plantas para que a construção fique exatamente como planejado e para que consiga fazer as mudanças aproveitando da melhor forma o espaço disponível. É preciso ainda mais planejamento quando se deseja um projeto de 4 quartos, pois é preciso analisar o tamanho de cada um, a disposição dele na planta e entre outros ajustes com a localidade e formato.
Quando está se construindo ou reformando um sobrado, é preciso decidir previamente se irá preferir que os quartos sejam simples ou suítes, para que seja feita uma melhor organização e aproveitar o espaço, pois as suítes necessitaram de um espaço maior que os quartos simples, além do planejamento do encanamento e outros detalhes técnicos de uma construção.
Plantas de Sobrados
As vantagens de se dedicar na escolha da planta desejada, fazer todas as mudanças adequadas e ajustes que se deseja, pedir opinião e outras ideias na disposição dos cômodos para o engenheiro é a melhor forma de não se arrepender e desejar mudar após estar construindo, pois isso irá atrasar todo o trabalho da obra, ter um custo mais elevado com materiais, mão de obra e também dará mais serviço para os trabalhadores, e as mudanças após a planta baixa estar pronta, não garantirá que ficará como se deseja, porque irá alterar as medidas de várias partes.
Em um sobrado, a pessoa terá mais espaço e poderá construir uma quantidade maior de cômodos e que eles possuam um tamanho maior, porém, é preciso pensar na harmonia de onde ficarão os móveis, os eletrodomésticos, as portas, as janelas, a escada, a varanda, a garagem e também na localização e praticidade dos cômodos. Todo esse planejamento é indicado para que o resultado final deixe o sobrado mais atraente e confortável para morar.






















